莱山第二实验小学周边片区有新规划!
烟台市自然资源和规划局网站 2026-02-27 14:26:10
近日,烟台市自然资源和规划局网站发布最新规划。
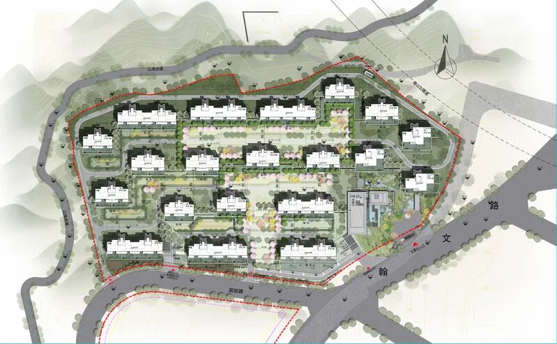
莱山第二实验小学北侧B地块(天青云莱小区)规划建筑设计方案批前公示
为提高城市规划的透明度,保障广大市民的知情权,参与权和监督权,根据《中华人民共和国城乡规划法》《山东省城乡规划条例》等法律法规有关规定,对该项目进行公示,欢迎广大市民提出意见和建议。
建设单位:烟台招瑞房地产开发有限公司
设计单位:烟台市建筑设计研究股份有限公司
项目名称:莱山第二实验小学北侧B地块(天青云莱小区)
项目位置:莱山区翰文路西侧,莱山区第二实验小学以北。
规划指标:规划总建筑面积133496平方米,其中计容建筑面积76200平方米,地上不计容建筑面积7918平方米,地下建筑面积49378平方米。
附图:总平面图、鸟瞰图


公示时间:2026年2月14日—2026年3月2日
责任编辑:王蕾
